Projekt rekonštrukcie domu
Ak plánujete pretransformovať váš domov a priniesť do neho nový dych života, máme pre vás ideálne riešenie. Architektonická spoločnosť DEDE sa špecializuje na vytváranie projektov rekonštrukcie domov, ktoré vám umožnia maximalizovať potenciál vášho priestoru. Pri tvorbe projektu rekonštrukcie domu je dôležité zladiť estetiku s funkčnosťou. Naši odborníci sú zruční v návrhu, ktorý zachováva charakter vášho domu a zároveň prináša moderné riešenia, ktoré vyhovujú súčasnému štýlu života. Cena projektu rekonštrukcie domu zohľadní všetky nároky na kvalitu a detaily, aby ste dostali projekt, ktorý spĺňa vaše očakávania.
Aká je cena rekonštrukcie domu?
| Služby | Cena |
|---|---|
| Cena za kompletnú rekonštrukciu domu | Cena |
Tieto ceny sú však len orientačné a môžu sa výrazne líšiť v závislosti od konkrétnych požiadaviek klienta.
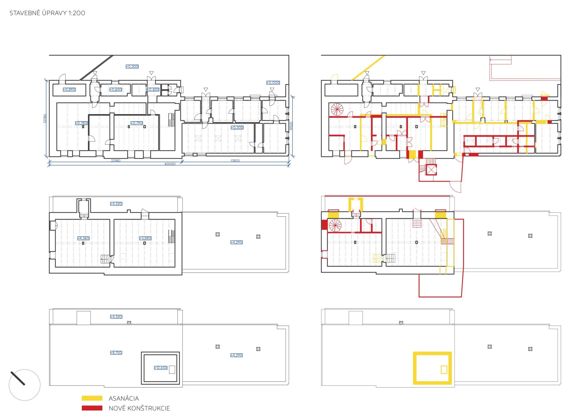
Projekt rekonštrukcie domu – Prevedenie Vašich Plánov do Reality:
Každá rekonštrukcia domu začína dôkladným plánovaním. Odborníci vytvárajú projekty rekonštrukcie domov, ktoré zahŕňajú všetky aspekty premeny vášho domova. Od architektonických zmien až po výber materiálov a farieb, naša spoločnosť vám poskytne komplexný projekt, ktorý vám umožní mať jasný pohľad na celý proces rekonštrukcie. Náš tím odborníkov v oblasti rekonštrukcie domov je pripravený vám pomôcť v každom kroku premeny domova. Od návrhu až po realizáciu vám poskytneme podporu, aby vaše predstavy a požiadavky boli prevedené do kvalitného projektu. Bez ohľadu na rozsah rekonštrukcie, sme tu, aby sme vás viedli k optimálnemu riešeniu. Tiež by vás mohlo zaujímať: projekt domu alebo projekt na výstavbu.
Prečo Si Vybrať Nás?
Vytvorenie projektu rekonštrukcie domu je investíciou do vášho bývania a životného štýlu. Odborníci DEDE pracujú s vášňou a profesionalitou na vytváraní projektov, ktoré zohľadňujú vaše potreby a predstavy. Cena projektu rekonštrukcie domu sa líši podľa rozsahu zmien a špecifických požiadaviek. Naša spoločnosť vám poskytne transparentnú a spravodlivú cenovú ponuku, ktorá zohľadní všetky aspekty vášho projektu. Spoločnosť DEDE sa vyznačuje dlhoročnými skúsenosťami v oblasti rekonštrukcií domov. Naši odborníci sú pripravení vám poskytnúť profesionálnu radu a vytvoriť projekt rekonštrukcie domu, ktorý bude zodpovedať vašim požiadavkám a predstavám. Sme tu, aby sme vám pomohli premeniť váš domov na miesto, ktoré bude odrážať váš štýl a poskytnúť vám komfortné bývanie. Ak máte záujem o projekt rekonštrukcie domu a chcete sa dozvedieť viac o našich službách, neváhajte nás kontaktovať. Radi vám poskytneme ďalšie informácie a spoločne nájdeme optimálne riešenie pre váš projekt rekonštrukcie. Chcete vytvoriť individuálny projekt? Stačí nás kontaktovať na čísle +421949611686.
Často kladené otázky
01. Prečo by som mal(a) zvážiť projekt rekonštrukcie domu?
Projekt rekonštrukcie domu je ideálnym spôsobom, ako pretransformovať váš dom a prispôsobiť ho vašim potrebám a štýlu života. Odborníci spoločnosti DEDE vytvoria komplexný projekt, ktorý zohľadňuje architektonické zmeny, výber materiálov a farieb, čím vám umožnia mať jasný pohľad na celý proces rekonštrukcie.
02. Čo robí projekt rekonštrukcie domu od spoločnosti DEDE výnimočným?
Naši odborníci pracujú s vášňou a profesionalitou, aby vytvorili projekty rekonštrukcie domov, ktoré zohľadňujú vaše potreby a predstavy. S dlhoročnými skúsenosťami v oblasti rekonštrukcií domov sú pripravení vám poskytnúť profesionálnu radu a vytvoriť projekt rekonštrukcie domu, ktorý bude zodpovedať vašim požiadavkám a štýlu.
03. Ako sa určuje cena projektu rekonštrukcie domu a aké faktory ovplyvňujú cenu?
Cena projektu rekonštrukcie domu sa líši v závislosti od rozsahu zmien a špecifických požiadaviek. Spoločnosť DEDE poskytuje transparentné a spravodlivé cenové ponuky, ktoré zohľadňujú všetky aspekty vášho projektu. Odborníci s vami spolupracujú na vytvorení projektu, ktorý bude zodpovedať vašim finančným možnostiam a bude optimalizovaný pre vaše potreby.



